Tuscany Villa
project type:
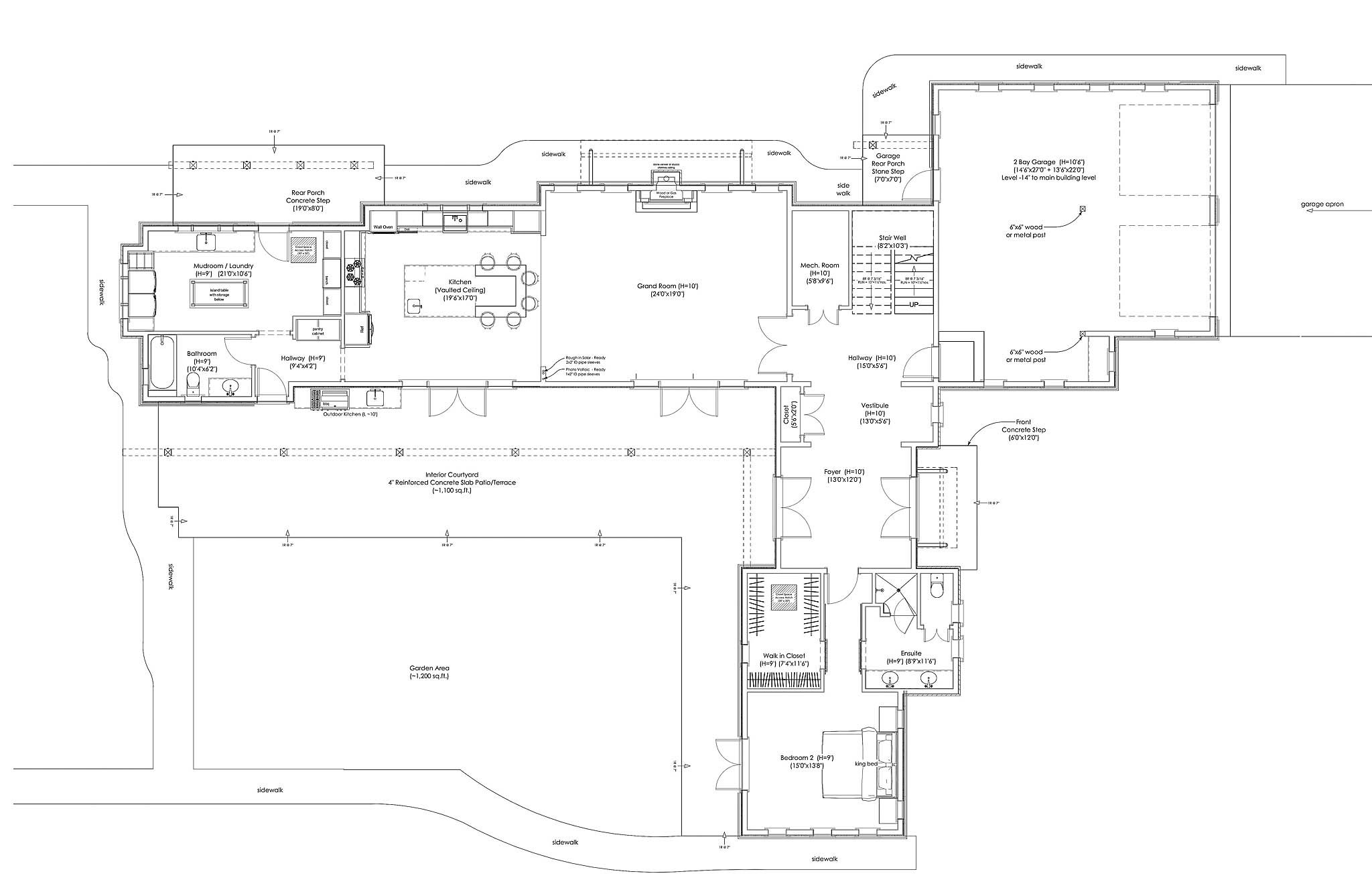
residential, new construction
location:
cobble hill, vancouver island, british columbia, canada client:
confidential
construction size:
4230 sq.ft. (383 m²) + garage 785 sq.ft. (73 m²)
building design:
cezar e. cristea
interior design:
donna burdulea & cezar e. cristea
progect management:
david coulson & donna burdulea
structural engineering:
buepoint consulting ltd.
builder:
david coulson design ltd.
status:
finalized 2022

This custom home is a blend of rustic charm and timeless elegance inspired by the Tuscan style. The project revives the classic aesthetics of Italian villa and combines it with modern technologies. The recognizable features of the style include add-on forms, rustic exterior elements of stucco, rough-cut stone, low pitch roofs, and ornate elements of wrought-iron railings and wall accents. Our clients wanted the warmth and harmony of the Tuscan style as the main theme around which to build this project. The result was splendid, the built structure blended perfectly with the surrounding landscape of Cobble Hill.
















