Long Beach
project type:
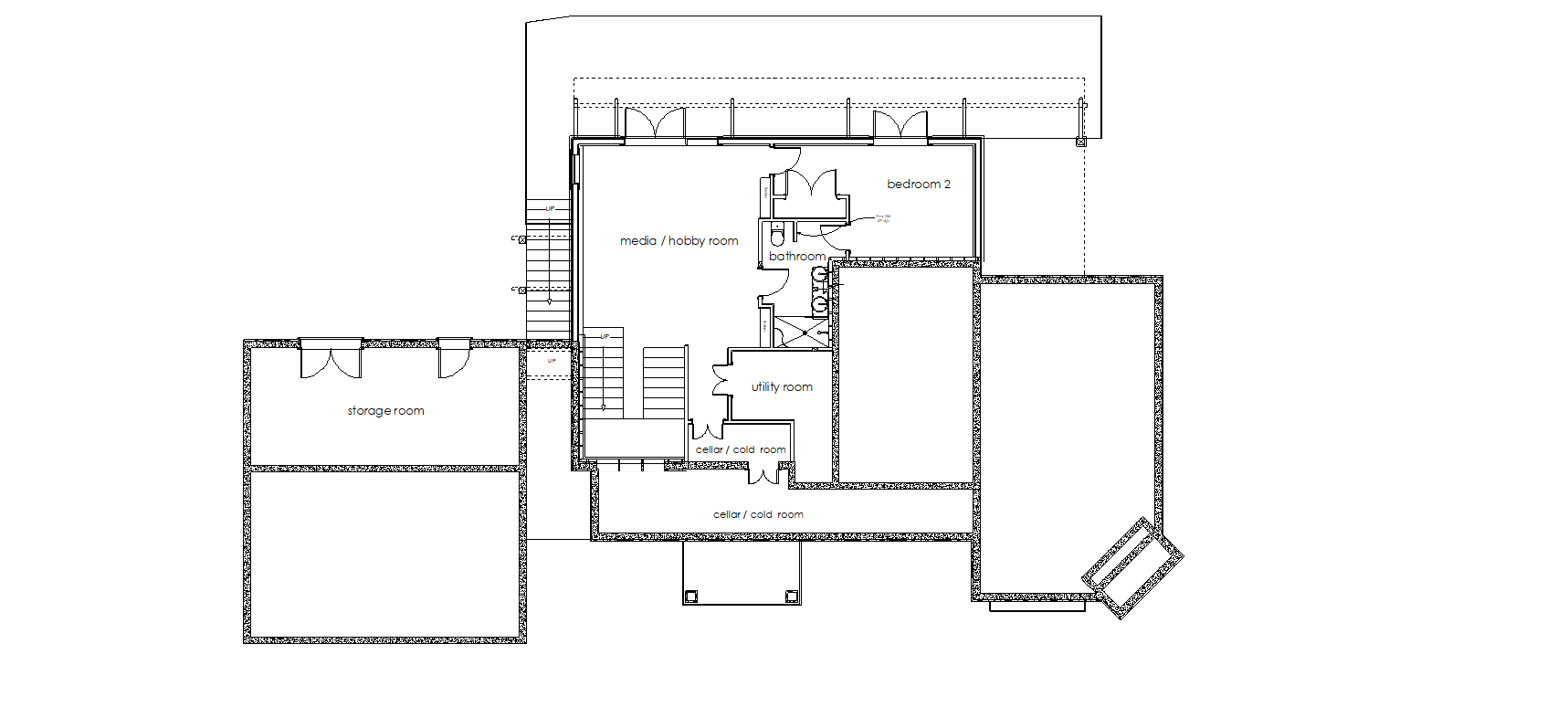
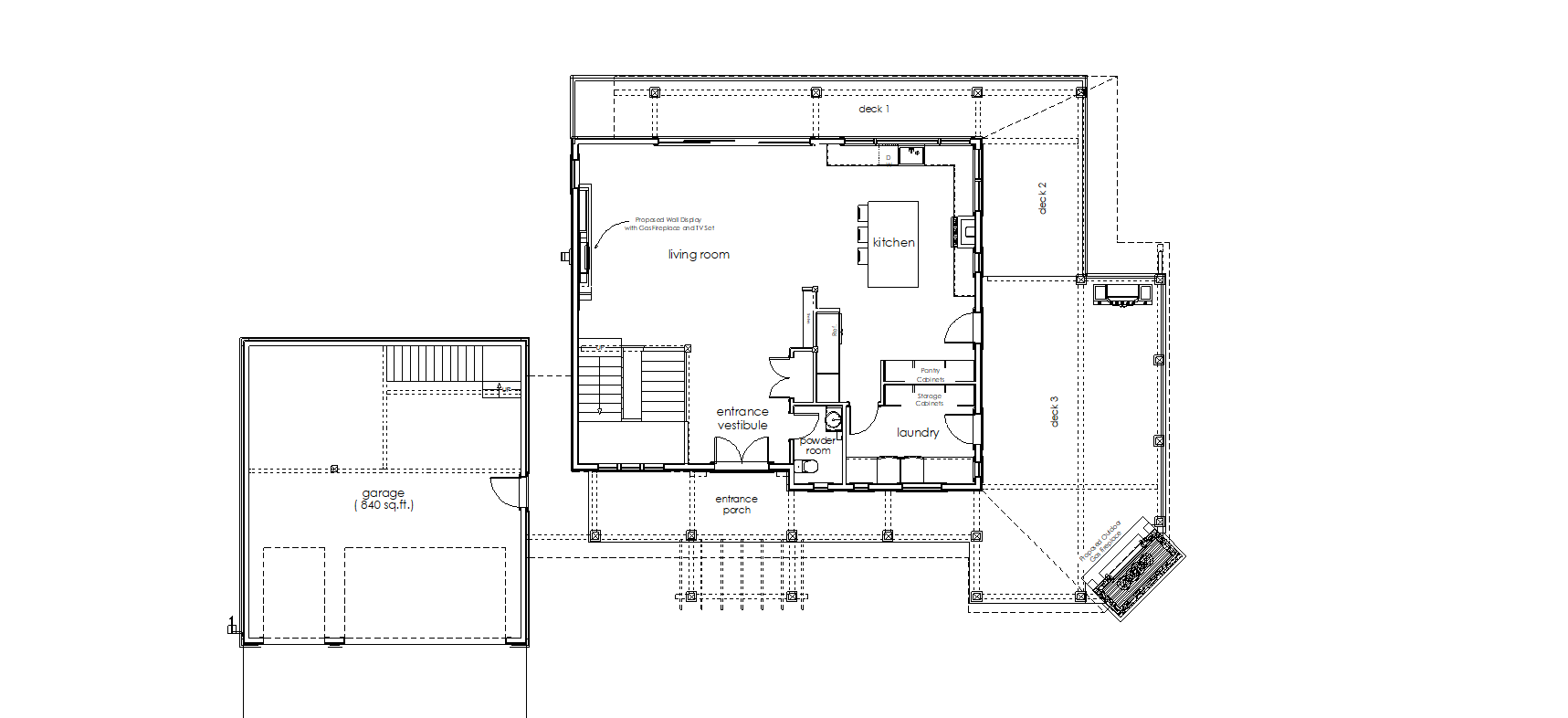
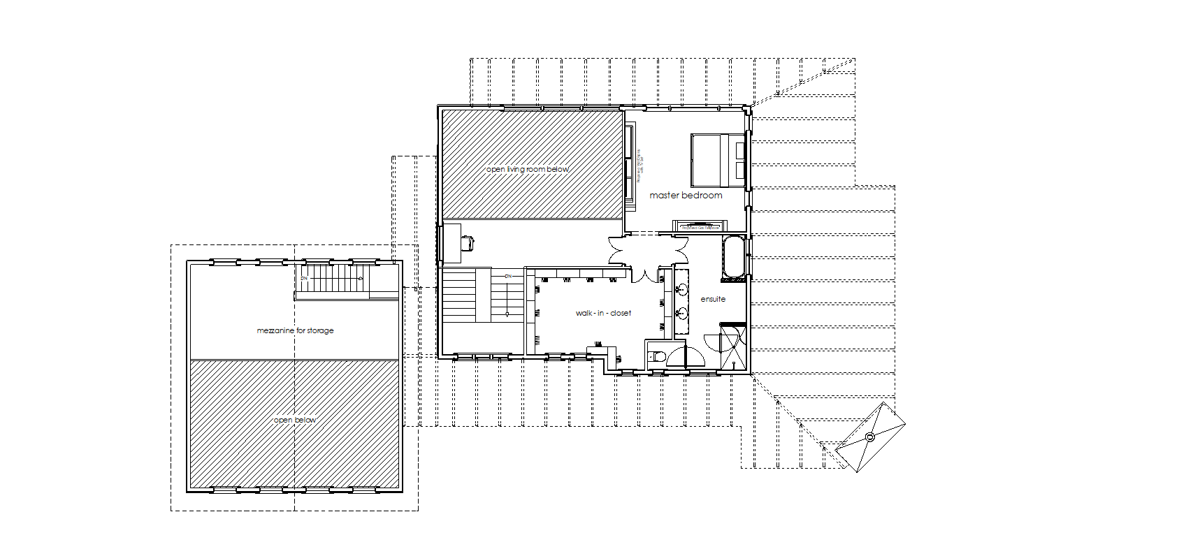
residential, renovation
location:
chemainus, vancouver island, british columbia, canada
client:
confidential
construction size:
3,150 sq.ft. (293 m²) + decks 1,800 sq.ft. (167 m²) + garage 840 sq.ft. (78 m²)
building design:
cezar e. cristea
interior design:
cezar e. cristea
structural engineering:
higginson consulting ltd.
builder:
status:
finalized 2019

This project was a challenge from the very beginning. While the property enjoys a perfect oceanfront location, it came with significant constraints. The existing structure was in a state of complete disrepair. Although demolition seemed like the simplest solution, it wasn’t possible—the lot was too small, and with the shoreline just 35–40 feet away, rebuilding on the same footprint was unfeasible.
The only viable option was to renovate. The design centered around two guiding principles: respecting the original footprint with no possibility for expansion and fulfilling the client’s vision of a home that felt both relaxed and coastal, yet warm and rooted in mid-century Craftsman bungalow style. Using natural materials, vertical board-and-batten siding, cedar shingles, and traditional gable roofs, we brought that vision to life. Generous decks open to ocean views, creating an ideal indoor-outdoor living.
The final result: a charming, informal home with timeless coastal character.



















